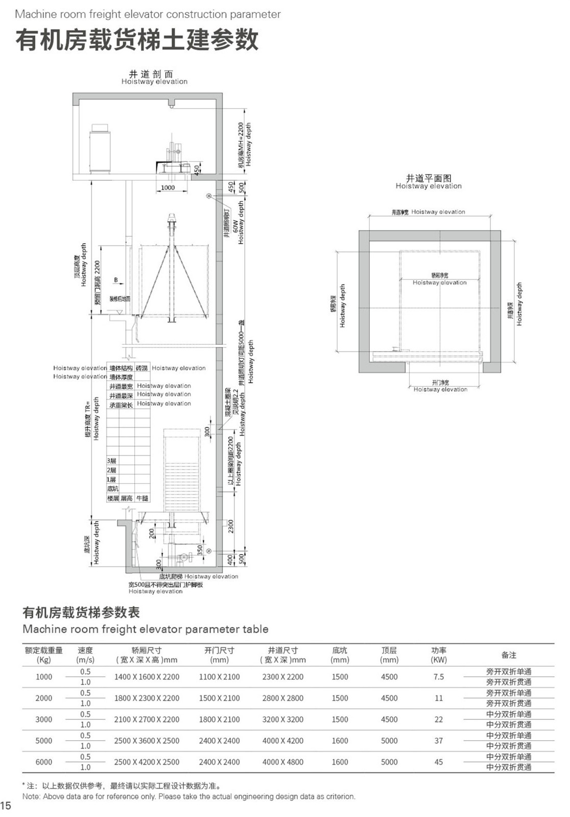
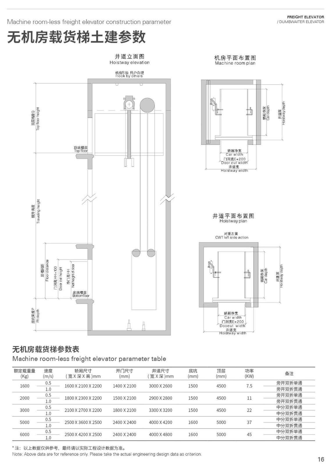
羞羞视频软件系列载货电梯优化设计的轿厢宽敞明亮,经济实用,使货物运输方便快捷,运行平稳,载重量大等优良品性,在工厂、仓库、商场、购物中心、图书馆等不同用途和环境均能满足客户的需要,是更好的货运工具。
版权所有©羞羞视频软件电梯有限公司 备案号:赣ICP备60940909号-1 赣公网安备 36012202000318号
地址:江西省南昌市新建区望城新区兴业一路366号 网址:www.360wangye.com 服务热线:400-098-1966 技术支持:
* 信息保护中,请放心填写