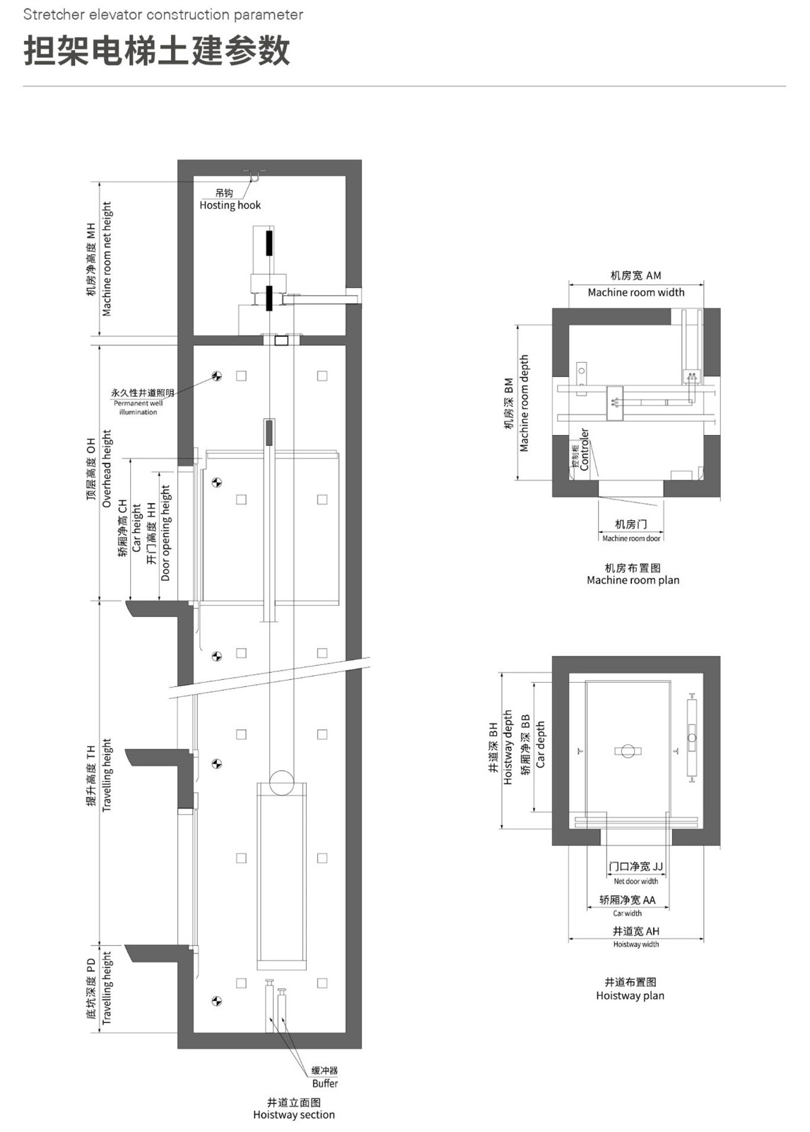
羞羞视频软件担架电梯采用深轿厢结构,大载重设计,可满足 120 急救中心的急救担架车、折叠式急救担架车和软担架的进出要求,打造舒适的绿色通道。
版权所有©羞羞视频软件电梯有限公司 备案号:赣ICP备60940909号-1 赣公网安备 36012202000318号
地址:江西省南昌市新建区望城新区兴业一路366号 网址:www.360wangye.com 服务热线:400-098-1966 技术支持:
* 信息保护中,请放心填写